Bạn đang tìm một mẫu nhà 8×8 2 tầng mái nhật thật thoáng, thật sáng và tối ưu từng mét vuông? Rất nhiều gia chủ sở hữu lô đất 8×8 đều gặp chung một vấn đề: nhà nhỏ dễ bí, thiếu ánh sáng, phòng ốc chật và phải bật đèn cả ngày. Nhưng điều đó hoàn toàn có thể giải quyết nếu biết cách tổ chức mặt bằng và tận dụng đúng ưu điểm của mái Nhật.
Trong bài viết này, Xây Nhà Đẹp sẽ chia sẻ toàn bộ kinh nghiệm thực chiến: cách lấy sáng tự nhiên, xử lý nắng – gió, bố trí giếng trời, lựa chọn vật liệu, cùng các phương án mặt bằng được tối ưu đặc biệt cho diện tích 8×8. Nếu bạn đang chuẩn bị xây nhà và muốn tìm giải pháp vừa đẹp, vừa mát, vừa tiết kiệm năng lượng, bài viết này chính là thứ bạn cần.
Quan điểm thiết kế của Xây Nhà Đẹp cho nhà 8×8 2 tầng mái Nhật

Khi thiết kế mẫu nhà 8×8 2 tầng mái nhật, Xây Nhà Đẹp luôn đặt hai tiêu chí lên hàng đầu: ánh sáng tự nhiên và thông gió. Trên diện tích nhỏ, hai yếu tố này quyết định gần như toàn bộ cảm giác sống: rộng hay chật, mát hay bí, tiết kiệm hay tốn năng lượng.
Dựa trên kinh nghiệm thi công các công trình tương tự, chúng tôi ưu tiên bố trí không gian mở, tạo trục sáng – trục gió rõ ràng, và tận dụng tối đa đặc thù của mái Nhật để đạt hiệu quả cao nhất.
Triết lý tối ưu ánh sáng và gió tự nhiên
Những ngôi nhà diện tích nhỏ như thiết kế nhà vuông 64m2 cho thấy một nguyên tắc quan trọng: muốn nhà sáng thì phải có “điểm hút ánh sáng” và “điểm đẩy gió”.
Với mẫu nhà 8×8 2 tầng mái nhật, Xây Nhà Đẹp không bố trí quá nhiều phòng trên cùng một mặt, mà tạo các khoảng mở liên thông theo chiều dọc. Điều này giúp ánh sáng lan truyền đều, tránh tối góc phòng và giảm phụ thuộc vào đèn điện.
Gió tự nhiên được dẫn theo hướng ưu tiên của khu vực, tạo dòng xuyên phòng để không khí được thay mới liên tục.
Vai trò của mái Nhật trong việc kiểm soát nắng nóng và che chắn
Mái Nhật có độ dốc vừa phải, đua rộng và phân tầng hài hòa. Điều này giúp nhà giảm hấp thụ nhiệt, tạo bóng mát tự nhiên và tránh mưa tạt – nắng gắt.
Trong nhiều công trình tương tự như mẫu nhà vuông mái thái 8×8, các bề mặt mái cũng được tận dụng để điều tiết ánh sáng và nhiệt.
Với mẫu nhà 8×8 2 tầng mái nhật, Xây Nhà Đẹp ưu tiên mái đua rộng để che nắng hướng Tây, đồng thời kết hợp lam gỗ hoặc lam bê tông để giảm chói mà vẫn giữ không gian thoáng.
Vì sao các lô đất 8m thường thiếu sáng – kinh nghiệm xử lý của Xây Nhà Đẹp
Các lô đất có chiều ngang 8m thường bị che bởi nhà hàng xóm hai bên. Điều này khiến ánh sáng tự nhiên chỉ vào được ở mặt trước và mặt sau.
Trong nhiều công trình nhà 8×8 1 tầng, chúng tôi đã gặp bài toán tương tự: nhà dễ bí, dễ tối và khó tạo thông gió chéo.
Xây Nhà Đẹp giải quyết bằng cách mở các khe sáng dọc nhà, sử dụng giếng trời nhỏ, bố trí cửa lùa thay cho cửa mở truyền thống, và đặt các mảng kính ở vị trí không ảnh hưởng riêng tư. Đây là kỹ thuật quan trọng để giữ sự thoáng đãng cho mẫu nhà 8×8 2 tầng mái nhật.
Cách tổ chức mặt bằng 8×8 để nhà sáng và thoáng
Diện tích 8×8 nhỏ, nhưng nếu tổ chức tốt, không gian vẫn rộng rãi và thoải mái. Xây Nhà Đẹp luôn đi theo hướng tối ưu luồng sáng – luồng gió trước khi bố trí nội thất.

Phân khu chức năng hợp lý trong mặt bằng nhỏ
Với những gia đình muốn bố trí công năng tương tự nhà 8×8 2 phòng ngủ, nguyên tắc là giữ mặt bằng tầng 1 thoáng nhất có thể.
Xây Nhà Đẹp thường đặt phòng khách – bếp – ăn liền mạch để ánh sáng không bị cắt khúc. Các phòng kín như ngủ hoặc WC được đặt lùi về cuối nhà, nơi có thể mở ô thoáng hoặc giếng trời nhỏ.
Bố trí tầng 1 tối ưu ánh sáng cho phòng khách – bếp – ăn
Tầng 1 là nơi sinh hoạt chính nên phải sáng và thoáng.
Xây Nhà Đẹp dùng các cửa kính lớn ở mặt tiền, kết hợp cửa lùa ở bên hông nếu có khoảng trống. Không gian bếp được đặt gần giếng trời nhỏ để hút mùi và tạo luồng gió đứng.
Nhờ cách tổ chức này, ánh sáng được đưa từ trước ra sau, hạn chế điểm tối và giảm cảm giác chật.
Tầng 2 ưu tiên thông gió phòng ngủ
Trong những công trình có bố cục tương tự thiết kế nhà vuông 8x9m 2 tầng, phòng ngủ trên tầng 2 thường dễ nóng và bí hơn.
Để tránh điều này, Xây Nhà Đẹp ưu tiên mở cửa sổ hai hướng cho mỗi phòng nếu điều kiện cho phép. Trường hợp chỉ có một mặt thoáng, chúng tôi dùng cửa lùa rộng + ô thoáng cao 2m để tạo dòng gió đều.
Cách làm này vừa giữ được sự riêng tư vừa giúp phòng ngủ luôn thoáng, không tích nhiệt.
Lõi thang + giếng trời giữa nhà – kinh nghiệm triển khai thực tế của Xây Nhà Đẹp
Giếng trời đặt giữa nhà tạo trục sáng và trục gió cực kỳ hiệu quả cho mẫu nhà 8×8 2 tầng mái nhật.
Xây Nhà Đẹp đã áp dụng giải pháp này cho nhiều công trình và nhận thấy hiệu quả rõ rệt: không gian sáng hơn, giảm nóng, không khí lưu thông tốt mà không tốn chi phí vận hành.
Khu vực cầu thang được bố trí sát giếng trời để lấy sáng tự nhiên, giúp tiết kiệm điện và tạo điểm nhấn kiến trúc.
Giải pháp mặt đứng để đón sáng – đón gió hiệu quả
Mặt đứng của mẫu nhà 8×8 2 tầng mái nhật cần được tính toán kỹ vì đây là nơi đón ánh sáng và gió nhiều nhất. Xây Nhà Đẹp ưu tiên các thiết kế thoáng, sạch hình khối, tận dụng vật liệu hiện đại.
Tối ưu cửa sổ, cửa lùa, kính lớn hướng gió mát

Cửa lùa giúp tiết kiệm diện tích và đón gió tốt hơn cửa mở truyền thống.
Kính lớn ở mặt tiền tạo không gian sáng rộng, đồng thời giúp không gian kết nối với cảnh quan bên ngoài.
Xây Nhà Đẹp luôn chọn kính Low-E hoặc kính phản nhiệt nhẹ để tránh hấp thụ nóng quá mức.
Ban công – bồn cây – lam che nắng theo phong cách mái Nhật
Các công trình tương tự như mẫu nhà 2 tầng mái nhật 8×10 cho thấy lam che và bồn cây trước ban công có tác dụng giảm chói hiệu quả.
Xây Nhà Đẹp áp dụng kết hợp lam ngang + bồn cây thấp, vừa giảm nắng vừa giữ mặt tiền thoáng, cân bằng tính thẩm mỹ với công năng che nắng.
Gạch thông gió – ô thoáng – chi tiết nhỏ nhưng tạo khác biệt lớn

Gạch thông gió và ô thoáng là giải pháp giá rẻ nhưng mang lại hiệu quả cao.
Chúng giúp luồng gió vào nhà nhẹ nhàng hơn, tránh thốc gió mạnh khi mở cửa.
Trong các mẫu nhà 8×8 2 tầng mái nhật, chi tiết này còn giúp phá vỡ sự bức bí của mặt tiền nhỏ, tạo nhịp điệu nhẹ nhàng cho kiến trúc.
Giếng trời & thông tầng – giải pháp không thể thiếu trên diện tích 8×8

Trong những công trình nhỏ như mẫu nhà 8×8 2 tầng mái nhật, giếng trời và thông tầng là điểm tựa giúp không gian sáng, thoáng và giảm cảm giác chật. Xây Nhà Đẹp coi đây là “trục khí” quan trọng, giúp căn nhà vận hành tự nhiên, ít phụ thuộc vào điện năng.
Giếng trời trung tâm – điểm tạo sáng chủ đạo
Các công trình có bố cục tương tự mẫu nhà mái nhật 2 tầng 8x12m cho thấy giếng trời đặt ở trung tâm phân phối ánh sáng rất đều.
Với diện tích 8×8, Xây Nhà Đẹp thường chọn giếng trời thẳng hàng cầu thang để ánh sáng rọi xuống mọi tầng. Cách làm này giúp các khu vực giữa nhà bớt tối, hạn chế phải bật đèn cả ngày.
Vị trí đặt giếng trời giúp tiết kiệm điện và giảm tích nhiệt
Giếng trời cần được đặt ở vị trí “nhận gió – dẫn sáng” tốt nhất.
Xây Nhà Đẹp thường đặt giếng trời ở:
– Gần khu bếp để hút mùi và thoát hơi nóng
– Giữa nhà để ánh sáng lan tỏa đồng đều
– Cuối nhà để tạo dòng gió đứng
Đúng vị trí, giếng trời giúp nhà mát hơn 2–3°C, giảm dùng điều hòa, tiết kiệm điện rõ rệt.
Lưu ý phong thủy khi mở giếng trời theo kinh nghiệm của Xây Nhà Đẹp
Giếng trời phải mở ở vị trí không phạm trung cung và không chiếu thẳng vào phòng ngủ.
Theo kinh nghiệm thực tế, Xây Nhà Đẹp khuyên:
– Tránh đặt giếng trời đối diện cửa chính
– Giữ giếng trời sạch sẽ, thoáng khí
– Nên kết hợp cây xanh hoặc tiểu cảnh để cân bằng sinh khí
Cách bố trí hài hòa giúp mẫu nhà 8×8 2 tầng mái nhật vừa sáng vừa hợp phong thủy.
Lấy sáng từ mái Nhật cho mặt bằng nhỏ
Mái Nhật không chỉ có thẩm mỹ đẹp mà còn là nguồn sáng tự nhiên tuyệt vời nếu biết khai thác đúng cách. Trên mặt bằng nhỏ, hướng mái và vật liệu quyết định nhiều đến hiệu quả chiếu sáng.

Độ dốc mái – hướng mái – vật liệu nhẹ
Trong các công trình tương tự mẫu nhà 2 tầng mái nhật 8 x 11m, mái dốc 30–35 độ là tối ưu.
Xây Nhà Đẹp sử dụng mái nhẹ, bề mặt ít hấp thụ nhiệt để giảm nóng truyền xuống phòng tầng trên.
Hướng mái được căn theo nắng và gió địa phương, giúp nhà nhận đủ sáng mà không bị chói.
Cửa mái, ô sáng, ống dẫn sáng cho khu vực giữa nhà
Mặt bằng 8×8 thường có khu vực giữa nhà tối. Giải pháp là mở:
– Cửa mái nhỏ
– Ô sáng lấy nắng gián tiếp
– Ống dẫn sáng xuyên mái
Những chi tiết này giúp ánh sáng tự nhiên đi sâu vào không gian, giúp mẫu nhà 8×8 2 tầng mái nhật sáng đều mà vẫn mát.
Cách giải nhiệt tầng trên để tránh nóng hầm bí
Tầng trên luôn nóng hơn nên cần giảm tích nhiệt.
Xây Nhà Đẹp áp dụng:
– Mái chống nóng 3 lớp
– Khoảng không dưới mái để không khí thoát lên
– Ô gió trên mái để đẩy khí nóng ra ngoài
Nhờ vậy, phòng ngủ tầng trên không bị oi bức vào mùa nóng.
Tối ưu thông gió tự nhiên
Thông gió tự nhiên là chìa khóa để nhà thoáng, tiết kiệm điện và hạn chế ẩm mốc. Với mặt bằng nhỏ, hướng gió phải được tính toán ngay từ bản vẽ.

Bố trí cửa vào – cửa ra tạo luồng gió xuyên phòng
Gió chỉ hoạt động hiệu quả khi có điểm vào – điểm ra.
Xây Nhà Đẹp luôn bố trí cửa sổ lệch nhau giữa các phòng, tạo dòng gió chéo giúp không khí thay mới liên tục.
Nhờ đó, không gian luôn khô thoáng, phù hợp với cấu trúc của mẫu nhà 8×8 2 tầng mái nhật.
Không gian mở liên thông phòng khách – bếp – ăn
Không gian mở giúp ánh sáng và gió lan truyền nhanh hơn.
Trong nhiều công trình, Xây Nhà Đẹp gộp phòng khách – bếp – ăn để hạn chế tường ngăn. Cách bố trí này giúp tầng 1 luôn thoáng khí và dễ chịu.
Giải pháp cho nhà kẹp bên, thiếu mặt thoáng
Những ngôi nhà tương tự 8×8 thiết kế nhà vuông 8x9m thường chỉ có một mặt thoáng.
Giải pháp của Xây Nhà Đẹp:
– Dùng cửa lùa lớn
– Mở ô gió cao sát trần
– Thêm giếng trời nhỏ cuối nhà
Nhờ vậy, dù bị kẹp giữa hai nhà, không gian vẫn thoáng.
Tạo “túi gió” bằng sân trước, sân sau, giếng trời
“Túi gió” là vùng đệm giúp hút – đẩy không khí.
Xây Nhà Đẹp tận dụng sân trước, sân sau, hoặc giếng trời để tạo vùng áp suất thấp, kéo gió tự nhiên vào nhà.
Cách làm này cực kỳ hiệu quả cho diện tích nhỏ như mẫu nhà 8×8 2 tầng mái nhật, giúp nhà luôn dễ chịu mà không cần nhiều thiết bị cơ khí.
Vật liệu – màu sắc – chi tiết giúp nhà sáng và mát
Trong những công trình diện tích nhỏ như mẫu nhà 8×8 2 tầng mái nhật, vật liệu và màu sắc là yếu tố tạo nên sự thoáng đãng. Xây Nhà Đẹp luôn ưu tiên các giải pháp giúp ánh sáng lan tỏa đều và giảm tích nhiệt.
Kính, nhôm, gương – bộ ba khuếch tán ánh sáng hiệu quả

Kính và nhôm tạo bề mặt phẳng, phản xạ nhẹ, đưa ánh sáng đi xa hơn.
Gương giúp mở rộng thị giác, tạo cảm giác không gian sâu hơn.
Xây Nhà Đẹp sử dụng kính Low-E để giảm nóng nhưng vẫn giữ được độ sáng tự nhiên. Đây là cách vừa tăng thẩm mỹ vừa giúp tối ưu năng lượng cho các mẫu nhà 8×8 2 tầng mái nhật.
Màu tường, trần, sàn giúp mở rộng không gian

Màu sáng giúp không gian nhỏ như 8×8 trở nên rộng và thoáng hơn.
Tường và trần nên chọn gam trắng, kem hoặc ghi nhạt để ánh sáng phản xạ tốt. Sàn nên dùng tông gỗ sáng hoặc đá xám nhạt để cân bằng độ ấm của không gian.
Xây Nhà Đẹp luôn ưu tiên bề mặt mờ (matte) để ánh sáng dịu và ít chói.
Nội thất không che chắn ánh sáng
Trong các công trình tương tự mẫu nhà 2 tầng mái nhật 8m x 10m, việc đặt nội thất sát cửa sổ thường làm mất luồng sáng chính.
Xây Nhà Đẹp bố trí nội thất gọn, hạn chế tủ cao áp sát tường có cửa sổ. Bàn ghế thấp, kệ mở và sofa chân cao giúp ánh sáng không bị chặn.
Cách bố trí này giữ không gian nhẹ nhàng, thông thoáng và cân đối.
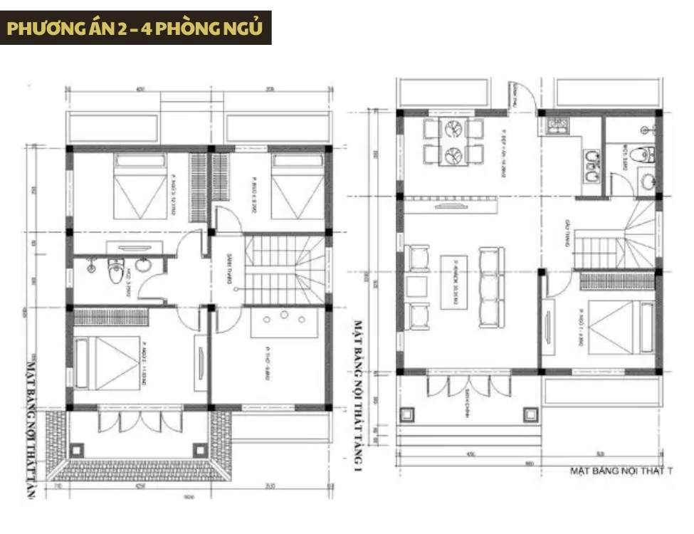
Hai phương án mặt bằng được Xây Nhà Đẹp đề xuất
Dựa trên kinh nghiệm thực tế, Xây Nhà Đẹp đưa ra hai phương án mặt bằng phù hợp cho diện tích 8×8, đảm bảo sáng – thoáng – tiện nghi.
Phương án 1 – 3 phòng ngủ

Phương án này ưu tiên không gian mở tầng 1 và giếng trời trung tâm. Đây là cách bố trí tương tự các mẫu nhà 8×8 2 tầng mái nhật đã thi công.
Tầng 1 gồm phòng khách – bếp – ăn liên thông. Giếng trời nằm sát cầu thang để ánh sáng lan đều. Tầng 2 gồm 2 phòng ngủ và 1 phòng thờ có cửa sổ lớn.
Phương án 2 – 4 phòng ngủ, tối ưu số lượng phòng nhưng vẫn thoáng

Nếu gia đình đông người, phương án 4 phòng ngủ rất phù hợp.
Xây Nhà Đẹp khéo léo mở ô gió cao và dùng cửa lùa trong nhà để giữ sự thông thoáng.
Phòng ngủ hướng ra ban công hoặc giếng trời để đảm bảo ánh sáng vẫn vào đủ.
Lời khuyên về hướng nhà, nắng gió và phong thủy
Hướng nhà và luồng gió quyết định chất lượng không gian sống. Xây Nhà Đẹp luôn kết hợp phong thủy và khoa học để đạt hiệu quả tốt nhất cho ngôi nhà.

Chọn hướng mở cửa chính và cửa sổ lớn
Ưu tiên hướng Nam hoặc Đông Nam để mát quanh năm.
Cửa sổ lớn nên đặt về hướng đón gió tự nhiên, giúp không gian thoáng mà không cần máy lạnh nhiều.
Cách giảm nắng hướng Tây bằng mái Nhật + lam che
Nắng Tây gây nóng và chói, nhất là với nhà phố nhỏ.
Xây Nhà Đẹp dùng mái Nhật đua rộng kết hợp lam đứng hoặc lam ngang để giảm nhiệt, giữ mặt tiền thanh thoát mà vẫn bảo vệ tốt.
Mở giếng trời – ban công – cửa mái hợp phong thủy
Giếng trời tránh chiếu thẳng vào trung cung.
Ban công nên có cây xanh hoặc bồn hoa để cân bằng sinh khí.
Cửa mái đặt phía hướng gió nhẹ, tránh gió dội thẳng vào nhà.
Câu hỏi thường gặp mà Xây Nhà Đẹp hay nhận được

Nhà 8×8 cần bao nhiêu giếng trời?
Một giếng trời lớn hoặc hai giếng trời nhỏ là phù hợp.
Xây Nhà Đẹp ưu tiên giếng trời trung tâm kết hợp giếng phụ phía sau để nhà sáng đều.
Có nên dùng mặt tiền kính toàn bộ?
Không nên dùng 100% kính vì dễ nóng và thiếu riêng tư.
Nên kết hợp kính + lam che + cây xanh để đạt độ sáng ổn định.
Dùng kính nào để vừa sáng vừa không bị nóng?
Kính Low-E hoặc kính phản nhiệt nhẹ là lựa chọn tối ưu cho mẫu nhà 8×8 2 tầng mái nhật, vừa sáng vừa không hấp thụ nhiệt quá mức.
Nếu nhà chỉ có một mặt thoáng thì xử lý sao cho vẫn sáng?
Dùng giếng trời, ô gió cao, cửa lùa và kính lấy sáng.
Đây là giải pháp Xây Nhà Đẹp áp dụng cho rất nhiều công trình bị kẹp bên.
Bố trí đèn nhân tạo kết hợp ánh sáng tự nhiên thế nào?
Dùng đèn màu trung tính, công suất nhỏ.
Không đặt đèn trực diện cửa sổ để tránh lóa.
Kết hợp ánh sáng tự nhiên ban ngày và đèn gián tiếp ban đêm.



